Ocean Drive – First Overseas Permission Granted

Forge Design Studio is delighted to confirm that one of our Ocean Drive villas has being granted Detailed Development Permssion by the Turks and Caicos Islands. We have liaised with local island Architects who have successfully co-ordinated the submission.

FOR_101_OCD_c13_03

The project will now be worked up in detail with the input from the services and structural engineers in order to get the required Building Permit to start construction.

We look forward to the opportunity to carry out some site visits!!

Union Holdings Villa DDP Approval_Page_1


 

Forge Design Update!

How time flies ….. can’t believe that we are already in June. It’s some time since our last blog so here is an update on a number of projects that have been keeping us busy over the recent months.

 


Ocean Drive, Turks and Caicos

 

FOR_101_OCD_c13_03

 

Detail design and visualisations have been produced for a pair of luxury villas on the Island of Providenciales, Turks and Caicos. The site is located on the ironshore and has an unbroken view of the ocean. We have worked with our colleagues Make Studio in Bournemouth to create a series of stunning visuals which will be used in the sales and marketing of the properties.

 

FOR_101_OCD_c10 

 

Making the most of the sloping site we have arranged the accommodation so that all major spaces have unbroken sea views – 4 beds all with en-suite facilities and a 42 foot multi-use living space will ensure that these properties will not be short of interest when they are released on the market.

 

FOR_101_OCD_c10.05 

 

The contemporary design will be developed to a detailed stage with local engineers to ensure compliance with all the current building codes particularly following last year’s experience of Hurricane Irma. We are also getting used to working in imperial measurement again as the islands follow North American convention ….. some of us are old enough to remember 1:48 and 1:96 scales the first time round!!!

 

FOR_101_OCD_c09


 

North Brook End Stud, Steeple Morden

 

Practical Completion has been achieved on Dragonfly Barn at North Brook End Stud. The 2,200 sqft barn conversion has been snapped-up by the very first potential tenant who visited the completed building and he is due to move-in any day.

 Mike steered the project through the final stages, co-ordinating all the final notices, land transfers, registration, warranties and completion certificates. Liaison then took place with the brokers to ensure that a mortgage offer was received and completed to allow the capital funding to be settled.

 Big thank you to all parties at MSP Capital in Poole, MCP-Law in Wisbech and Homeline Mortgages who worked with us to ensure it all went smoothly in the end.

 Our clients, Douglas and Sarah, are absolutely delighted with the results and preparation is underway to start work on the young stock barn. We have also now been commissioned to look at the remaining part of the barn to seek consent for a change of use.

 We are waiting for our completed photographs so in the meantime enjoy this clip of these youngsters enjoying the spring sunshine!!

 


 

University Project, Cambridge

 

We have worked with our client, a large UK Contractor, on the implementation of an extensive programme of works on a University Campus in the Centre of Cambridge. The project has involved a major de-cant and relocation of existing teaching spaces to facilitate the main portion of the work. 

The temporary accommodation is spread over a total of 7 varying work phases from fit-out of new build space to complete re-modelling of a floor of an existing academic building on the site.

 The main work which involves a considerable amount of very detailed co-ordination is due to start on site imminently.

 


 

Silver Hill, Borehamwood

 

After a planning process that lasted approximately 15 months and extensive consultation Listed Building and Full Planning Consent have been granted for a new dwelling on the site of The Thatched Cottage, Silver Hill, Shenley.

 SILVERHILL_NEW LAYOUT_280318 4

The demolition of a Listed Building is not something we would normally advocate but given the severe extent of the damage and the scale and size of the building, in this instance it was justified as the degree of salvageable remains were so small. Heritage England were fully engaged and supported our findings subject to agreement on the final design proposals.

 The existing badly fire-damaged building will be demolished following the preparation and submission of a detailed measured survey. The new design will be sited on the existing footprint, to echo the former cottage, with a wrap round extension which provide a range of accommodation for our client and his family.

Work has already commenced on site, with the clearance of the overgrown vegetation and setting-up of the temporary accommodation.


 

Ocean Drive, Turks and Caicos

After a period of gestation, Forge Design Studio have started work in earnest on the design of 2 luxury villas on the islands of Turks and Caicos in the West indies. This fantastic opportunity has grown out of the relationship developed with one of our main current clients, who we have now worked with on several projects in the UK.

20170513_123221

The site is near the main town of Providenciales and is on a south-facing slope over-looking the ocean. The attached photographs give a flavour of the uninterrupted views to the ironshore which forms the sea wall.

 

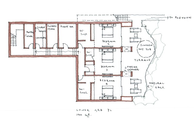
The creation of integrated inside / outside living space will be key to the success of the villas and the relationship to the main spaces to the external terraces and swimming pool is very important. A multi-level approach, stepping down the hillside with a suite of guest bedrooms at the lowest level, the ‘grand salon’ at upper ground and a luxury master bedroom suite on the top floor with its own private sun deck, are the initial ideas.

Sketch Plan_GroundSketch Plan_First

Consideration of climate with shade required from the sun and shelter from the prevailing trade winds being a strong design criteria. Liaison will take place with a local partnership contractor and engineers to develop the form of construction and inform the choice of suitable materials and detailing.

Consideration of climate with shade required from the sun and shelter from the prevailing trade winds being a strong design criteria. Liaison will take place with a local partnership contractor and engineers to develop the form of construction and inform the choice of suitable materials and detailing.

The design is being developed in our usual sequence of hand-drawn sketches and 3D modelling.

Looking forward to the site visits!


 

Royal West Indies, Turks and Caicos

Forge Design Studio have been commissioned to prepare a Vision Document for the Future Redevelopment of the Royal West Indies Resort site on the Turks and Caicos Islands. Fronting onto the world famous Grace Bay the existing site is renowned for its beautiful setting and landscape, however great potential exists to develop some residual areas of land.

We have worked closely with our Client to develop the initial concept to reorganise the entrance and arrival experience and to shift the centre of gravity of the site further away from the existing beach frontage. Ideas are now focussing on the site fronting the road to create a new, high profile impact building for visitors to the resort.

DCIM101MEDIADJI_0023.JPG

Photos attached show the benefits of a drone for achieving great quality aerial shots with the flexibility of fixing on specific heights to create realistic viewpoints.

The opportunity for a site visit is getting closer!!