Haverfield Gardens, Kew – Permission Granted!

Almost a year to the day of our last post on the project!!

We are really delighted with the result of the Planning Committee at London Borough of Richmond upon Thames on Wednesday night. After 2 and a half years and a great deal of effort spent by the whole team, our scheme for 5 new homes received a resolution to grant consent which was passed unanimously by the members.

The scheme on Haverfield Gardens, is a sensitive infill project carefully integrated and positioned on the site to avoid over-looking and any loss of privacy to the many adjacent properties. The mews style properties are compliant with the London Design Code and have been designed in accordance with all relevant Local Authority Policy requirements. The scheme brings new life to an otherwise low grade, underused site. A design cue has been taken from the scale of the adjacent terraced housing and studies have been carried out on the proportion of solid to void of the adjacent elevations

Providing 5 spacious family homes with generous external spaces including a first floor terrace and a split level rear garden, the accommodation is arranged over 3 floors including a basement with an integrated garage for 2 cars. Materials reflect the many and varied surroundings with a London Stock brick under a green sedum-roof. The bio-diversity net gain for the site has been improved by 127% according to the assessment completed as part of the application.

Our client, Rockhold have shown great persistence and resilience through-out the application period and we look forward to the next stages. Onwards!!

Martello Tower_A New Beginning

At Forge Design Studio we are very familiar with working with Listed Buildings and the planning constraints that are attached to them, however, Martello Tower F is a Scheduled Ancient Monument which carries with it a new level of Heritage involvement.

Martello Towers are small coastal artillery forts constructed after the renewal of war with France in 1803 to defend England against the threat of invasion. Their design and name were taken from a tower at Martello Bay, Corsica. 103 towers were constructed along the coast in two phases, those in Essex and Suffolk being built between 1809 and 1812. 

Martello Tower F is the only remaining moated example on the Essex coast. The tower is an important local landmark which has been through a variety of uses over its lifetime. 

Creating a viable long-term, sustainable use is a constant issue, appointed by our clients in the summer of 2020, the brief was to bring forward a series of design ideas to bring the redundant monument back to life and provide a sustainable multi-functional events space, specifically aimed at Weddings and Hospitality functions.

We propose a ring of lightweight masted structures located in the moat which will take a flexible tensile tented roof which can be tailored to suit the size of the event being catered for. Historic England stipulated that no fixings should be made into the fabric of either the tower or the moat walls – we worked closely with the engineers to arrive at a suitable solution.

A lightweight ‘saucer like’ structure is added to the roof to create an exclusive, unique vantage point which can be used to host a variety of gatherings – from weddings to corporate events. Services and functions will take place within the restored first floor space. 

Our design team have put together a comprehensive a Pre-Application design submission which sets out the proposal for a complete self-contained venue which can accommodate all aspects of a wedding celebration. The key factor in this design is flexibility, the venue needs to accommodate small parties as well as larger events.

We look forward to continuing work on this truly unique project and are very excited to fill this important old building with life and celebration!

Odyssey Health Club – Permission Granted!

Forge Design Studio are proud to have been involved with the redevelopment of the site at Odyssey Heath Club in Stevenage since 2015.

Initially we worked on the overall masterplan and redevelopment of the redundant part of the site for residential use. This was initially granted consent in May 2017. Since then the residential scheme has been subject to further change and design development and is now due to start on site imminently.

In the intervening period we have been commissioned to design and develop proposals for the internal re-modelling of key areas of the club including the changing areas, former squash courts, yoga studio and spa area. 

Most recently Stephen Aucott, the Managing Director asked us to develop proposal for the external areas to include –

  • New Entrance and improved circulation
  • New tennis courts and floodlighting
  • Sun terraces
  • Open air outside pool
  • External exercise areas 

A comprehensive masterplan was required to fully explore the relationships and inter-connectivity with the existing facilities, car parking and new residential uses. A planning application was prepared and submitted to North Herts in Dec 2021 and after a period of negotiation and discussion, consent was granted at the end of April

These exciting proposals represents the continued investment and commitment by the Management team to the long term future of the club. We are looking forward to maintaining our involvement as the project moves forward to construction.

Residential Project, Richmond upon Thames – Visual Communication

Forge Design Studio have worked with our client Rockhold alongside Iceni Planning Consultants, over the last 18 months on the detailed planning application for a 5-unit,  high-value residential scheme within the Kew Green Conservation Area, Richmond.

The scheme is situated on a redundant site, currently occupied by lock-up garages at the end of a residential cul-de-sac. It is a tight, narrow, urban site which has presented numerous constraints and challenges through-out the process. Extensive consultation has taken place in the neighbourhood and a series of one-to-one meetings with adjacent owners was particularly informative. 

A flavour of the project is included which shows our visualisations taken from the same point over the life of the scheme.

The five properties have been designed in response to the existing grain, scale and mass of the adjacent Edwardian terraces. Sited to reflect the adjacent housing they have a generous amount of south-facing private garden space.

Detailed elevational studies have been undertaken looking at proportion and arrangement of the main elements. A more contemporary approach is suggested which reflect the principles of the surrounding buildings without reverting to pastiche. This has been generally supported by the Planning Authority and has been welcomed by the client.

As ever, the means of communicating the design intention has been critical. We have drawn on our full range of graphic skills from initial hand drawn and coloured sketches, rudimentary sketch CAD modelling, through to completed CGI visuals developed in-conjunction with our good friends @MakeStudio in Bournemouth.

We have also modelled the scheme in the wider urban context to demonstrate how well it sits in the context.

Watch this space for the final conclusion to the Planning Application.

Rose & Crown, Aston – Permission Granted!!

It’s a Marathon not a Sprint!!

Forge Design Studio are delighted to confirm that May 2021 sees the conclusion of one of our longest running planning sagas.

Located in the rural village of Aston to the east of Stevenage, The Rose and Crown, and associated Barn, is a Listed Building which had been left vacant for over 12 months until our clients, purchased the site in 2016. Prior to this the pub had a chequered history having struggled in a really difficult trading environment with 11 different landlords in the previous 10 years.

We were appointed towards the end of 2016 to develop a design and planning strategy to utilise the site for housing whilst maintaining a fully functioning micro-pub. After a lengthy gestation period we submitted an application in July 2017 and proceeded to engage with the Local Authority Planning Officers culminating in an Officer Recommendation for Approval.

The project was taken to Planning Committee at East Herts District Council in March 2018 and was refused based on the strength of objections from local lobbyists.

It should be noted that the scheme is entirely Policy compliant and there is no argument about the principle of the re-use of the site. The chief protagonists set out an alternative vision which appeared to ignore the trading history and viability of the business bearing in mind there is another pub in the village. 

There then followed a series of applications, refusals, withdrawals and appeals culminating in the final, mid-pandemic, application in July 2020. It was decided to omit the pub from the application on the basis that the market would find its true value and that the Local Community would sustain its re-birth!

So, after 5 years of effort we have permission for a modest new build scheme consisting of 4 residential units on a highly sustainable location on a vacant site in the centre of a village and a still vacant pub.

Given the uncertainties we all face in the aftermath of the Pandemic, if this timescale through the Planning process is the best that can be done,  it’s going to be a long road to recovery. 

Student Mentoring & Site Visit to 227 Winchester Road!

For the second year in a row we are hosting students from Bath University and UWE as part of the innovative RIBA Student Mentoring scheme organised by the team at RIBA South West Forge Design Studio. Following two office based sessions we visited site this week at 227 Winchester Road.

IMG_0644

Having recently received planning permission for the comprehensive re-design and re-building of the original house, our client has made a meaningful start on site. The demolition of a substantial part of the original house has been completed and the reduced dig is underway in preparation for the piling rig.

201907_PL007_A

Proposed Ground Floor Plan

201907_PL008_A

Proposed First Floor Plan

The new design will create approx. 5,000sqft of accommodation, providing 6 bedrooms, 2 reception rooms and a large multi-function kitchen/dining/lounge area in a split level arrangement which takes advantage of the subtle change in level on the site.

The house follows an inter-locking, cranked plan which wraps around the generous garden with excellent orientation to capture the evening sun. The house will be served by an air source heat pump, underfloor heating and solar pv arrays on the roof.

IMG_0624

IMG_0640

We are excited to see the proposals for this innovative, contemporary design emerge from the excavations, stand by for a major transformation in 2020!!

South Street, Bishops Stortford, Permission Granted!!

Planning Approval has been granted by East Herts Council for our mixed-use regeneration project on South Street, Bishops Stortford. The proposals involve the comprehensive re-modelling and upgrading of the existing building (a former Co-op Headquarters building) which occupies a prominent corner plot in the Town Centre.

 

SOUTH STREET_SCENE4_V3

 

We look forward to working with our client on the next phase of implementation.

 

SOUTH STREET DECISION


 

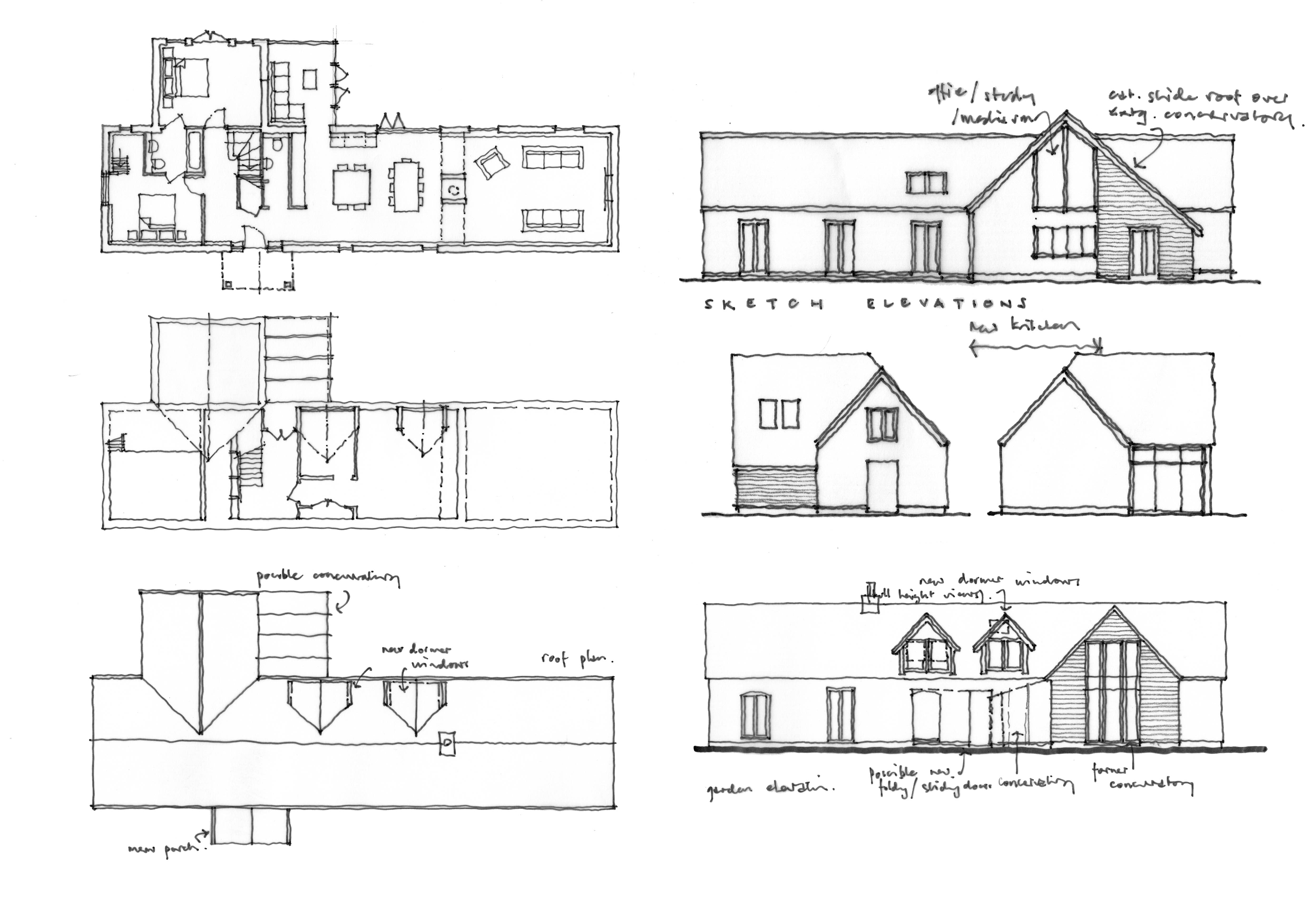
North Brook End House – Full Planning and Listed Building Consent!

Forge Design Studio is delighted to confirm that our project for our client, the Ware Family, at North Brook End House has been granted consent. The building is Grade II Listed and is a very fine south-facing Victorian House set in an extensive garden. We have worked closely with the family to develop a series of additions and modifications to create an improved balance of accommodation which is commensurate with its location and setting.

Sketch Proposals_Scan

We have liaised with our fellow consultants Cambridge Architectural Research, who produced the Heritage Statement and Gawn Associates on the Structural Engineering Strategy.

South West Elevation_Coloured_V2

Even though we say so ourselves it had a very smooth route through the planning process at South Cambs District Council thanks to a thorough and comprehensive approach which was complimented by the Case Officer.

North West Elevation_Colour

The project will now be worked up in detail with the input from the team to get ready for a start on site later this year.

We look forward to the opportunity to see the project through to completion!!


 

Sancerre Barn – Permission Granted – First one of the New Year!!

Forge Design Studio is delighted to confirm that one of the first e-mails received on our return to work in 2019 was confirmation that approval had been granted for the re-modelling and refurbishment of the Barn Conversion at Cold Harbour Farm.

proposed site plan

Located in the rural village of Ashwell the commission came from a recommendation from Sarah and Douglas at North Brook End Stud. Always nice to be introduced by an existing client!

concept sketches

The owners had bought the Barn in the knowledge that a substantial amount of work might be needed to turn it into their dream home. We have worked closely with them to create a completely new plan arrangement which will create the type of free-flowing, welcoming contemporary space that they were seeking.

201822_pl007.jpg

The re-organisation of the existing bedrooms and removal of a long dark corridor together with the new rear extension will substantially improve the arrangement of public living and private spaces. We’ve also opened-up the relationship to the outside garden spaces, both front and back.

201822_pl011.jpg

We look forward to developing the working drawings and assisting our clients in the procurement and construction of the scheme.  


 

Forge Design Update!

How time flies ….. can’t believe that we are already in June. It’s some time since our last blog so here is an update on a number of projects that have been keeping us busy over the recent months.

 


Ocean Drive, Turks and Caicos

 

FOR_101_OCD_c13_03

 

Detail design and visualisations have been produced for a pair of luxury villas on the Island of Providenciales, Turks and Caicos. The site is located on the ironshore and has an unbroken view of the ocean. We have worked with our colleagues Make Studio in Bournemouth to create a series of stunning visuals which will be used in the sales and marketing of the properties.

 

FOR_101_OCD_c10 

 

Making the most of the sloping site we have arranged the accommodation so that all major spaces have unbroken sea views – 4 beds all with en-suite facilities and a 42 foot multi-use living space will ensure that these properties will not be short of interest when they are released on the market.

 

FOR_101_OCD_c10.05 

 

The contemporary design will be developed to a detailed stage with local engineers to ensure compliance with all the current building codes particularly following last year’s experience of Hurricane Irma. We are also getting used to working in imperial measurement again as the islands follow North American convention ….. some of us are old enough to remember 1:48 and 1:96 scales the first time round!!!

 

FOR_101_OCD_c09


 

North Brook End Stud, Steeple Morden

 

Practical Completion has been achieved on Dragonfly Barn at North Brook End Stud. The 2,200 sqft barn conversion has been snapped-up by the very first potential tenant who visited the completed building and he is due to move-in any day.

 Mike steered the project through the final stages, co-ordinating all the final notices, land transfers, registration, warranties and completion certificates. Liaison then took place with the brokers to ensure that a mortgage offer was received and completed to allow the capital funding to be settled.

 Big thank you to all parties at MSP Capital in Poole, MCP-Law in Wisbech and Homeline Mortgages who worked with us to ensure it all went smoothly in the end.

 Our clients, Douglas and Sarah, are absolutely delighted with the results and preparation is underway to start work on the young stock barn. We have also now been commissioned to look at the remaining part of the barn to seek consent for a change of use.

 We are waiting for our completed photographs so in the meantime enjoy this clip of these youngsters enjoying the spring sunshine!!

 


 

University Project, Cambridge

 

We have worked with our client, a large UK Contractor, on the implementation of an extensive programme of works on a University Campus in the Centre of Cambridge. The project has involved a major de-cant and relocation of existing teaching spaces to facilitate the main portion of the work. 

The temporary accommodation is spread over a total of 7 varying work phases from fit-out of new build space to complete re-modelling of a floor of an existing academic building on the site.

 The main work which involves a considerable amount of very detailed co-ordination is due to start on site imminently.

 


 

Silver Hill, Borehamwood

 

After a planning process that lasted approximately 15 months and extensive consultation Listed Building and Full Planning Consent have been granted for a new dwelling on the site of The Thatched Cottage, Silver Hill, Shenley.

 SILVERHILL_NEW LAYOUT_280318 4

The demolition of a Listed Building is not something we would normally advocate but given the severe extent of the damage and the scale and size of the building, in this instance it was justified as the degree of salvageable remains were so small. Heritage England were fully engaged and supported our findings subject to agreement on the final design proposals.

 The existing badly fire-damaged building will be demolished following the preparation and submission of a detailed measured survey. The new design will be sited on the existing footprint, to echo the former cottage, with a wrap round extension which provide a range of accommodation for our client and his family.

Work has already commenced on site, with the clearance of the overgrown vegetation and setting-up of the temporary accommodation.