Almost a year to the day of our last post on the project!!
We are really delighted with the result of the Planning Committee at London Borough of Richmond upon Thames on Wednesday night. After 2 and a half years and a great deal of effort spent by the whole team, our scheme for 5 new homes received a resolution to grant consent which was passed unanimously by the members.

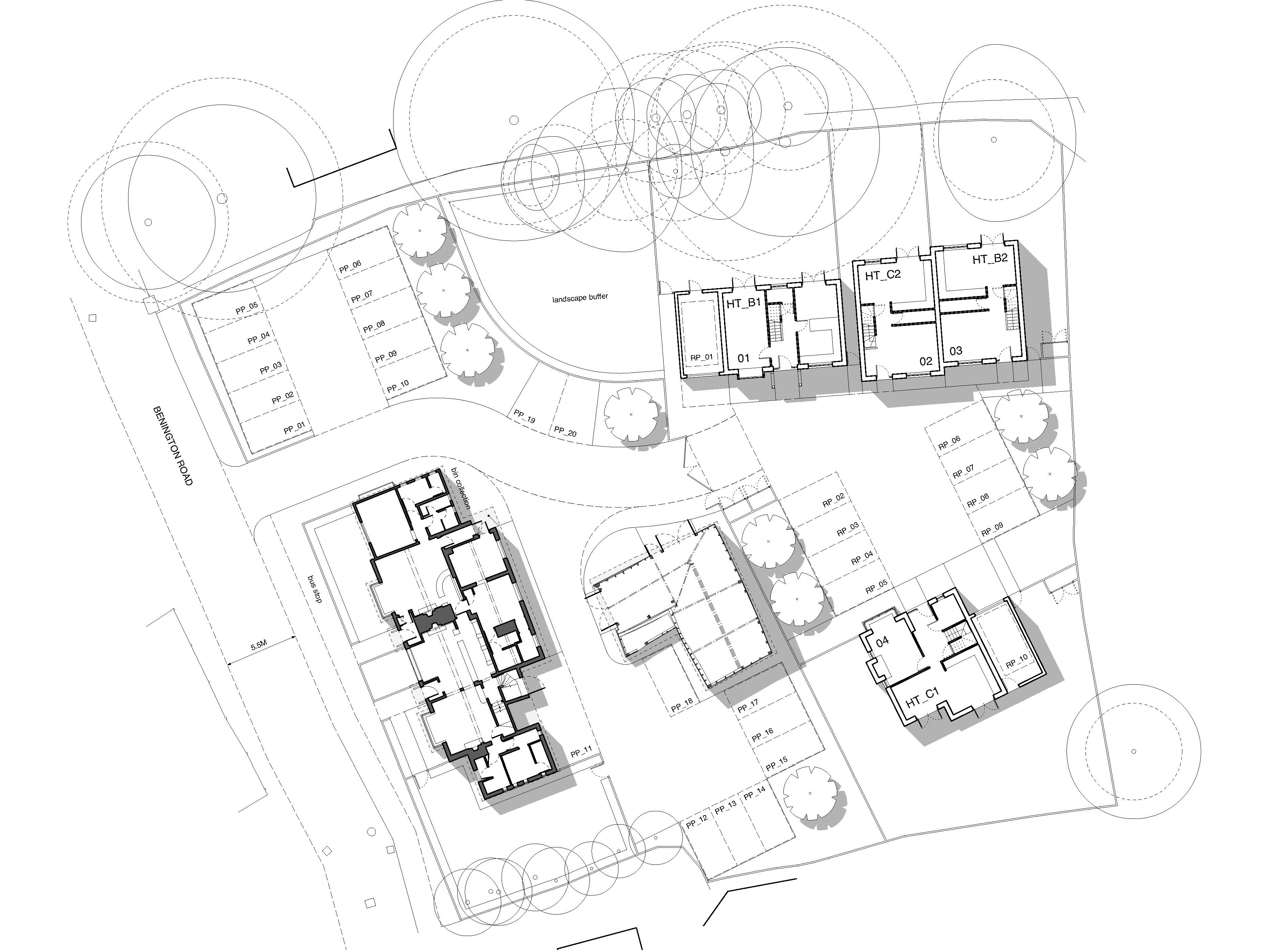
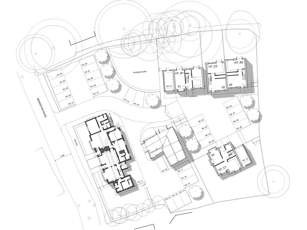
The scheme on Haverfield Gardens, is a sensitive infill project carefully integrated and positioned on the site to avoid over-looking and any loss of privacy to the many adjacent properties. The mews style properties are compliant with the London Design Code and have been designed in accordance with all relevant Local Authority Policy requirements. The scheme brings new life to an otherwise low grade, underused site. A design cue has been taken from the scale of the adjacent terraced housing and studies have been carried out on the proportion of solid to void of the adjacent elevations

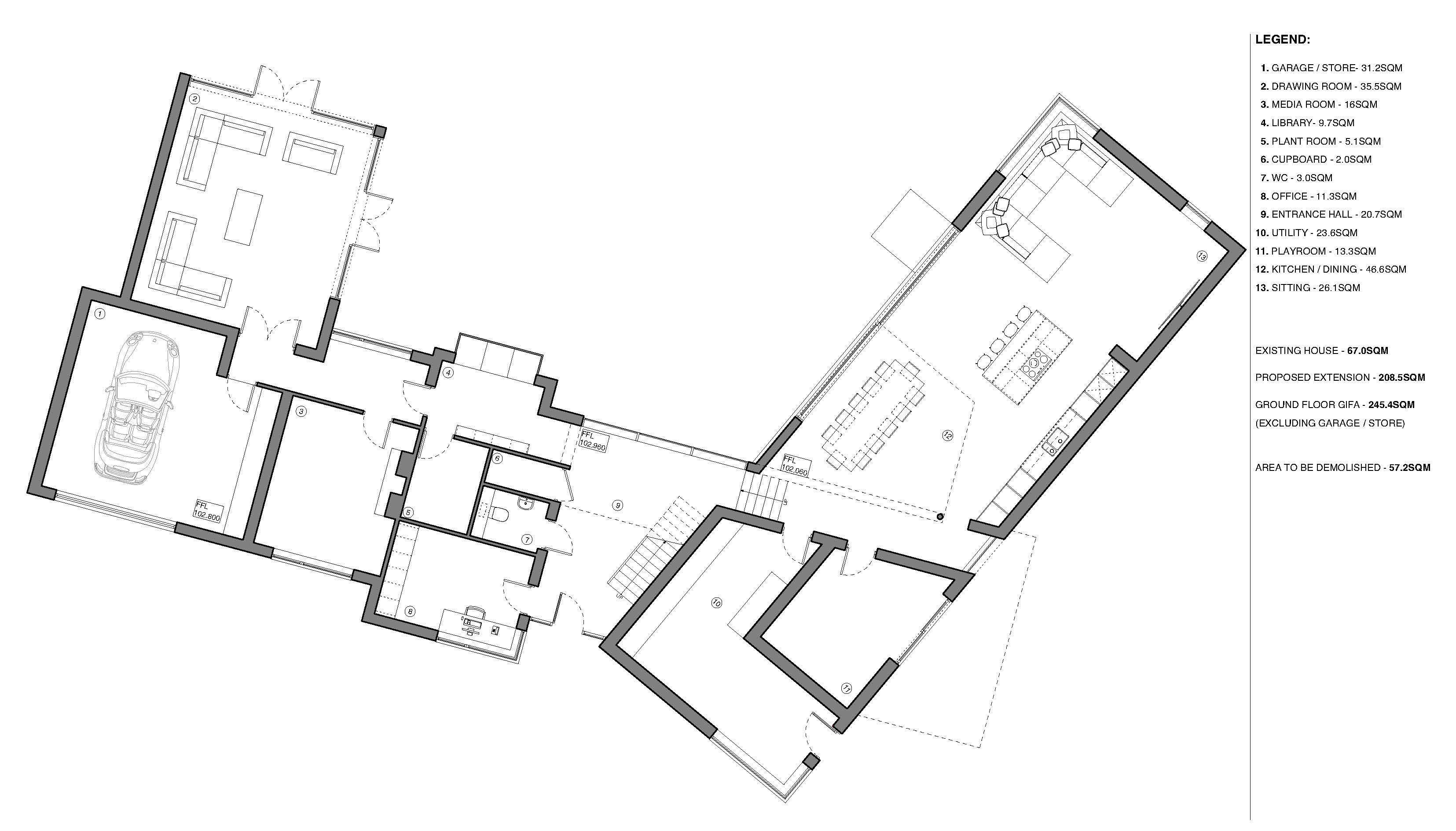
Providing 5 spacious family homes with generous external spaces including a first floor terrace and a split level rear garden, the accommodation is arranged over 3 floors including a basement with an integrated garage for 2 cars. Materials reflect the many and varied surroundings with a London Stock brick under a green sedum-roof. The bio-diversity net gain for the site has been improved by 127% according to the assessment completed as part of the application.

Our client, Rockhold have shown great persistence and resilience through-out the application period and we look forward to the next stages. Onwards!!


































