Forge Design Studio is delighted to confirm that one of the first e-mails received on our return to work in 2019 was confirmation that approval had been granted for the re-modelling and refurbishment of the Barn Conversion at Cold Harbour Farm.

Located in the rural village of Ashwell the commission came from a recommendation from Sarah and Douglas at North Brook End Stud. Always nice to be introduced by an existing client!

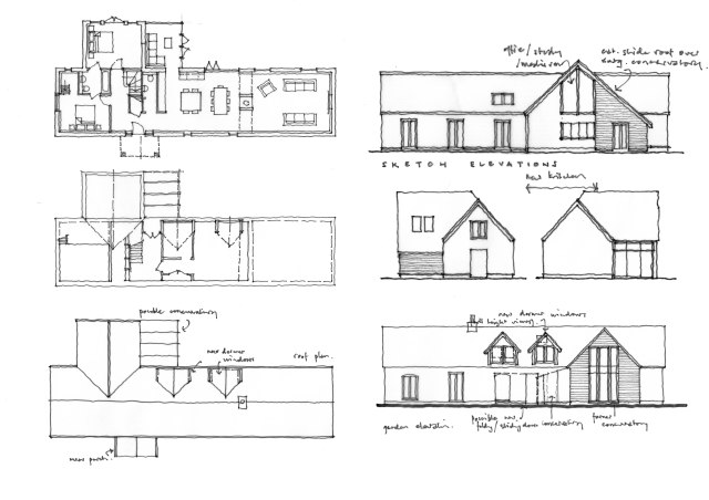
The owners had bought the Barn in the knowledge that a substantial amount of work might be needed to turn it into their dream home. We have worked closely with them to create a completely new plan arrangement which will create the type of free-flowing, welcoming contemporary space that they were seeking.

The re-organisation of the existing bedrooms and removal of a long dark corridor together with the new rear extension will substantially improve the arrangement of public living and private spaces. We’ve also opened-up the relationship to the outside garden spaces, both front and back.

We look forward to developing the working drawings and assisting our clients in the procurement and construction of the scheme.